Rumah Penjawat Awam Myra Dahlia
Rumah Penjawat Awam Myra Dahlia Pilihan Terbaik Kawasan Pinggiran Putrajaya
PPAM Myra Dahlia adalah rumah mampu milik yang luas, lengkap & selesa yang dilengkapi dengan 3 bilik tidur, 2 bilik air 900 kaki persegi. Harga Hanya RM299,800. Siap Perabot – Beli & Terus Masuk!
Lokasi matang di Bandar Baru Salak Tinggi, yang merupakan pusat pejabat awam daerah Sepang. Akses mudah ke Nilai, KLIA, Kota Warisan & Putrajaya.
Berdekatan dengan pelbagai kemudahan sedia ada memberikan keselesaan dan memudahkan urusan kehidupan harian.
Lokasi Strategik di Salak Tinggi
PPAM Myra Dahlia ini berhadapan dengan lot kedai dan taman-taman perumahan yang sedia ada memberi kelebihan kepada penghuninya.
Lokasi ini menawarkan akses mudah ke Sekolah Kebangsaan Taman Seroja & Sekolah Menengah Bandar Baru Salak Tinggi yang terletak kurang 1km sahaja.
Pelbagai kemudahan sudah tersedia di Salak Tinggi seperti Mahkamah Salak Tinggi, Stadium Mini Salak Tinggi dan projek perumahan baru lain yang rata-rata berharga lebih rm500k menjadikan PPAM Myra Dahlia ini suatu hartanah yang sangat berbaloi dimiliki.
Bagi ingin menaiki pengangkutan awam, stesen ERL Salak Tinggi sangat dekat untuk menghubungkan antara KLIA & KL Central. Akses mudah ke Bandar Nilai dan PLUS hiway juga memberi kelebihan.
Keterangan Projek
PPAM Daerah Sepang Mukim Salak Tinggi-
Nama Projek: PPAM Myra Dahlia
-
Pegangan Tanah: Freehold
-
Pemilikan: Open Title
-
Jumlah Blok: 1
-
Jumlah Unit: 480 Buah
-
Ketinggian: 25 Tingkat Unit Rumah
-
Ketinggian Parking: 7 Tingkat Unit Rumah
-
Tempat Letak Kereta: 2 Lot
-
Siap Pembinaan: 2027
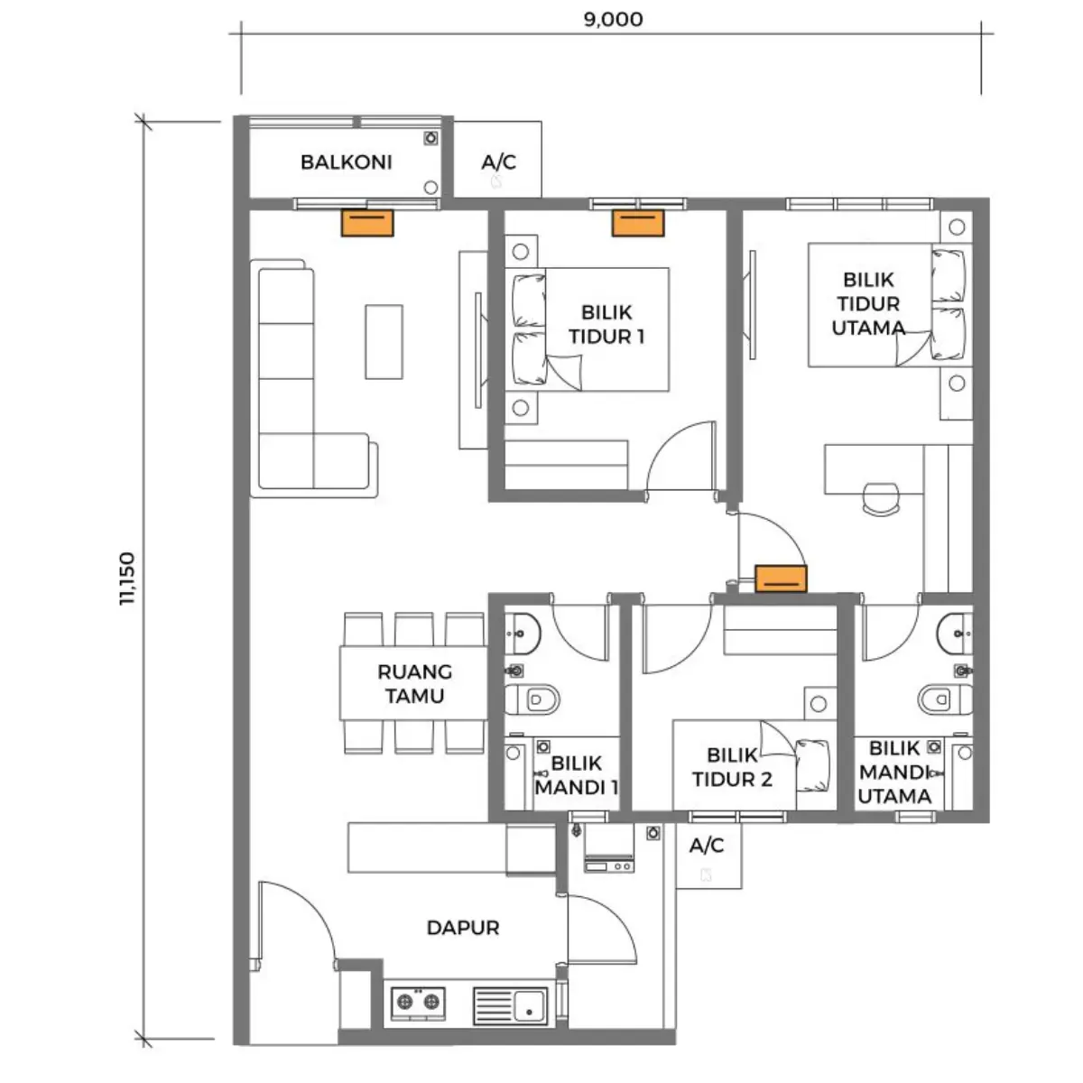
Pelan Lantai PPAM Myra Dahlia


PPAM Myra Dahlia
Keluasan 900sqft Setiap Unit-
3 Bilik Tidur 2 Bilik Air
-
Ada Balkoni
-
Ada Yard Dapur
-
95% Perabot PERCUMA
-
Harga Jualan: RM299,800
Percuma 95% Perabot!
Jangan Tunggu Lagi, Jadikan Salak Tinggi Alamat Anda di Rumah Penjawat Awam Myra Dahlia
Impian anda untuk memiliki rumah pertama di lokasi matang seperti Bandar Baru Salak Tinggi kini bukan lagi angan-angan. Bagi golongan M40, B40, dan anak muda yang baru membina kerjaya, Perumahan Penjawat Awam atau PPAM hadir sebagai kunci untuk membuka pintu kediaman idaman anda di bandar yang matang ini.
Inisiatif kerajaan ini menjadikan impian itu satu realiti yang mampu dicapai.
Projek Perumahan Penjawat Awam di PPAM Myra Dahlia bukan sekadar tentang membeli rumah. Ia adalah tentang membina masa depan, mencipta komuniti yang mampan, dan merealisasikan impian untuk hidup berkeluarga di bandar yang serba lengkap ini.
Semak kelayakan anda segera dan meneliti syarat permohonan rumah penjawat awam.



















